KIM61
Residential Building in Perm

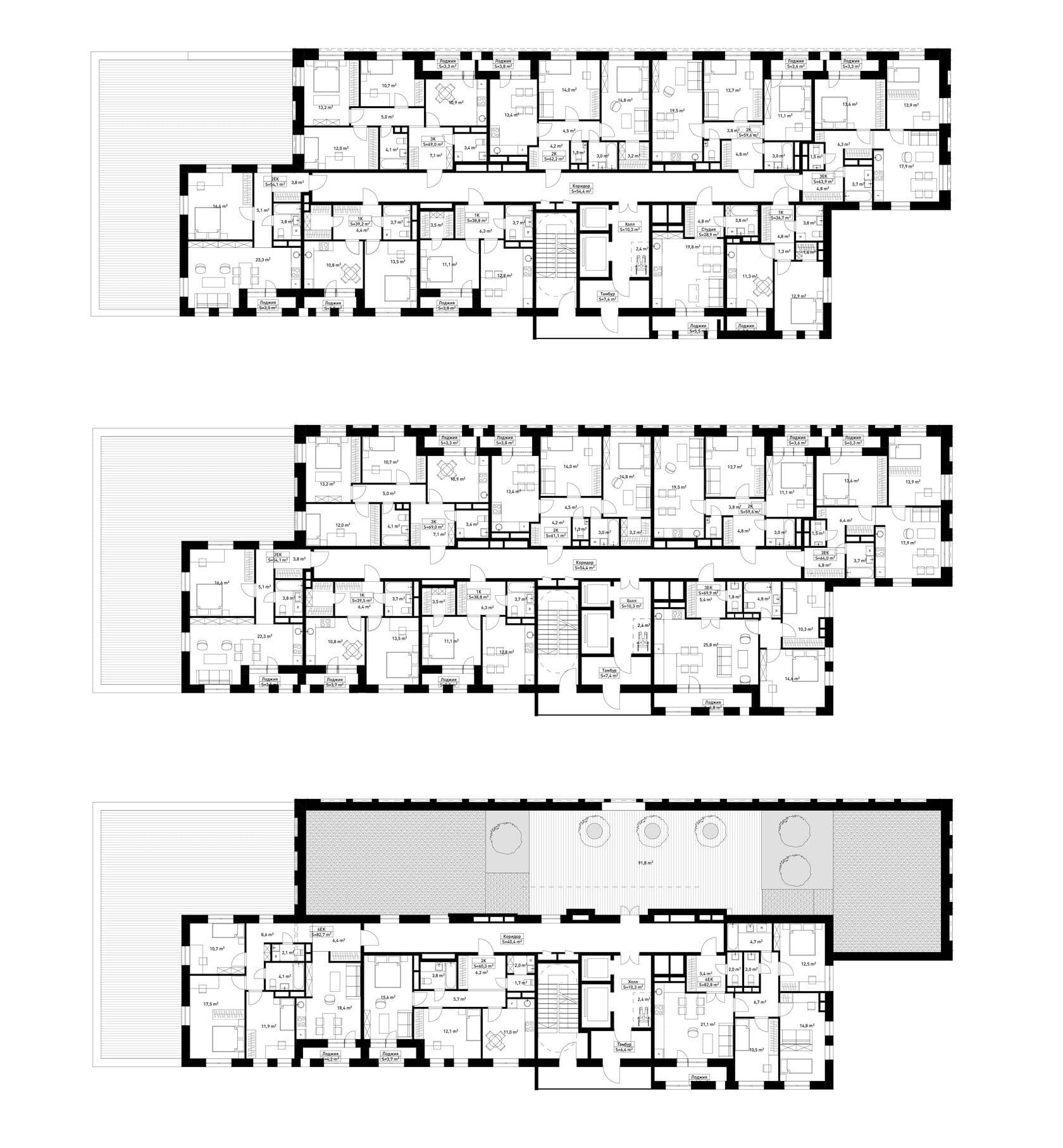
Task
Situated on a compact plot within Perm’s established urban fabric, the project calls for a cost-effective, single-entry residential building.
Solution
The massing solution is based on splitting the architectural volume into two plates of varying heights. This technique helps soften the perception of the high-rise building, making it appear more slender and elegant.
The duality of the architecture is enhanced by contrasting colors, materials, and facade window patterns. The varying heights of the plates also facilitate the creation of a communal terrace for all residents, offering spectacular views of the city and the Kama River.















Другие проекты
Job applications
We're always looking for new talent, so if you'd like to work with us, please send your resume and portfolio to jobs@krnv.pro
Documents
About project


