I36
Residential Building in Perm
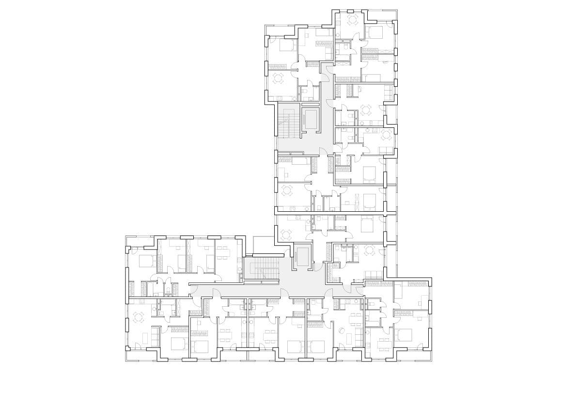
Task
The challenge was to create a highly cost-effective residential building on a small plot within an established urban context.
Solution
Given the project's strict economic constraints, the sculptural quality of the architecture, its proportions and the interplay of light and shadow play an even greater role.
















Другие проекты
Job applications
We're always looking for new talent, so if you'd like to work with us, please send your resume and portfolio to jobs@krnv.pro
Documents
About project









